このページでエナジーチェーン(Energy Chain®)の詳細設定ができます。設定データは、ページ最後のパーツリストに加えられます。
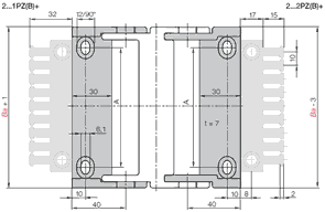
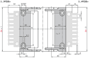
2400AG型 - チェーン、内周側スナップ開閉
オートグライドシステムがこのたび拡張され、
E2/000用にさらに最適化されました。オートグライドクロスバーの大型スライド面により、
システムの製品寿命がさらに長くなっています。 クリップ式グライドウイングにより、ストロークの最初の数メートルでエナジーチェーンが確実に調整されます。偏心ガイドは2メートルごとにフロアに固定されます。
チェーン長さ = S + K3
エナジーチェーンごとに2つのグライドウインドウが必要
注意:2つのグライドシューの幅を確保するために、チェーン外幅に14㎜追加する必要があります。
オートグライドシステムの設計については、当社の技術者にご相談ください。 4.0~10 mのストローク用に、フリースパン走行のエナジーチェーンを推奨します。