[[新規設計には、改良されたエナジーチェーンE4.1シリーズのE4.21型を推奨します。
ご不明な点ございましたら、お気軽にお問合せください。 ありがとうございます。
E4.21型へ
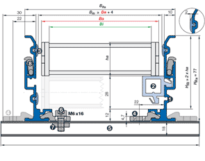
このページでエナジーチェーン(Energy Chain®)の詳細設定ができます。設定データは、ページ最後のパーツリストに加えられます。
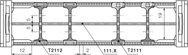
210型 - チェーン、全リンクにクロスバー付
1. 固定取付面を自由に選択できる
2. 汚れを寄せ付けない外面形状
3. 優れたデザイン
4. 標準 / 爪付セパレーター
5. ケーブルクランプ組付け可
6. クロスバーは両方向取外し可
内のり巾 Bi: 30 - 120 mm
曲げ半径R : 38 - 200mm
ピッチ : 30,5 mm(1リンクあたり) = 33リンク/m
(1007mm)